
型號含義 Model implication
適用范圍 Application
1、適用于1區、2區、20區、21區、22區危險場所。
2、適用于ⅡA、ⅡB、ⅡC類爆炸性氣體環境。
3、適用于可燃性粉塵場所。
1、Can be used in Zone1、Zone2、Zone20、Zone21、andZone22 hazardous areas.
2、Can be used in ⅡA、ⅡB 、ⅡCgroup explosive atmosphere.
3、Can be used in flammable dust areas.
產品特點 Features
1、玻璃纖維增強不飽和聚脂模壓成型外殼,具有強度高,耐沖擊、耐腐蝕等優良性能。
2、聚碳酸脂透明燈罩。
3、外殼為增安型結構,具有防水,防塵等優點。
4、內置開關采用防爆元件,當產品打開時能自動切斷電源。
5、內裝單腳燈管、快速瞬時啟動,可根據用戶要求改裝雙腳燈管。
6、可根據用戶要求配帶應急裝置。
7、電纜或鋼管布線均可。
1、The glass fiber strengthen unsaturated polyester mould pressing shape outer covering. Have the strength high, bear the impact and bear the good function in etc. in corrosion.
2、Polycarbonate transparent chimney.
3、The outer shell is for increasing the peaceful type construction, having the watertightness, dust palliative…etc. advantage.
4、The inside places the switch adoption flameproof a piece, be the product open can cut off the power supply automatically.
5、Single footlights tube installed inside, starting with fast instantaneous. Canrefit the one foot light tube according to the customer request.
6、The emergency device can be provided according to user's request.
7、Wiring by cable or steel pipe.
主要技術參數 Main technical parameters
應急裝置參數 Emergency equipment parameters
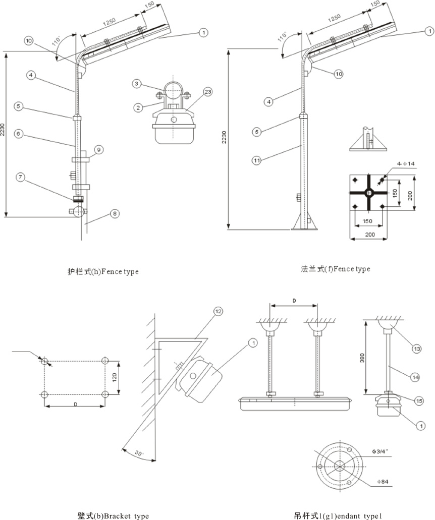
外形及安裝舉例 Outline and mounting example




